Palazzo Del Diplomatico
Preview only — see all hotel photos
See all 78 photos
Mostrar hotel en el mapa
Palazzo Del Diplomatico
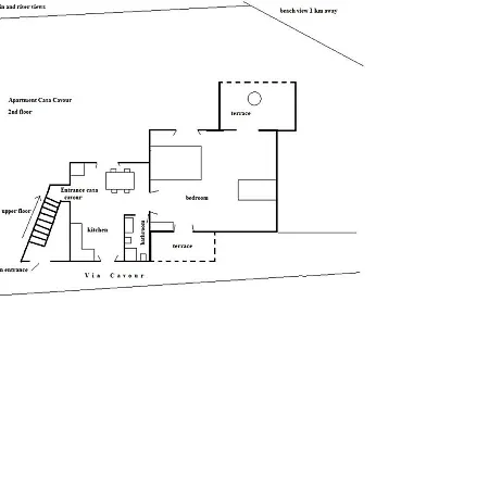
La Villa Palazzo Del Diplomatico Belmonte Calabro está situada a 5 minutos a pie de la Chiesa Santa Maria Assunta y ofrece a sus huéspedes una terraza con comedores al aire libre. Con vistas a las montañas, la casa de vacaciones invita a los huéspedes a visitar el Centro Benessere Meteora, situado a 4 km.
Situada a tan solo 8 minutos a pie del Centro Storico Belmonte Calabro, la villa está a unos 10 minutos en coche de la Amantea Vecchia. La Villa Palazzo Del Diplomatico está a 52 km de Catanzaro, mientras que la Chiesa di San Bernardino da Siena se encuentra a 2 km. Situada al lado de la Chiesa del Purgatorio, este establecimiento es uno de los destinos favoritos de fieles y turistas.
La Villa Palazzo Del Diplomatico incluye un cuarto de baño con un bidé, ducha a ras de suelo y un inodoro separado. Además, los huéspedes pueden disfrutar de la comodidad de los secadores de pelo, los albornoces y las toallas.
Los huéspedes pueden hacer uso de una cocina completa, así como una zona de comedor y un comedor al aire libre en este lugar. También hay cafetera/tetera, una nevera y una placa para preparar tu propia comida. Los huéspedes pueden cenar en el restaurante La Perla, a unos minutos a pie de esta villa. Esta villa también está a 49 minutos en coche del aeropuerto Internacional de Lamezia Terme. Los huéspedes pueden explorar la zona con bicicletas de alquiler que se ofrecen en las instalaciones, donde los amantes del deporte pueden practicar ciclismo.
Comodidades
Características principales
- Wi-Fi
- Servicios 24 horas
- Playa privada
- Actividades
- Comida/Bebida
- Salas de reuniones
- Agradable para niños
- No se permiten mascotas
Instalaciones
- Prohibido fumar en el territorio
- Wifi
- Aparcamiento
- Recepción 24 horas
- No se admiten animales
- Playa privada
- Cajero automático
- Utensilios de cocina
- Restaurante
- Zona de comedor exterior
- Playa
- Terraza solárium
- Submarinismo
- Esnórquel
- Esquí
- Excursionismo
- Equitación
- Bicicletas
- Pista de tenis
- Pesca
- Traslado aeropuerto (de pago)
- Alquiler de coches
- Lavandería
- Asistencia en excursiones/ Servicio de entradas
- Servicio de compra de ultramarinos
- Centro de negocios
- Calefacción
- Zona de estar
- Patio
- Terraza
- Mueble de jardín
- Servicio de té/ café
- Mesa de comedor
- Lavadora
- Artículos de baño gratis
- Televisor LCD
- Cunas
- Suelo de parquet
Política
Mapa
Atracciones locales
Puntos de interés
- Chiesa Madonna del Carmine (2650 km)
- Arena Sicoli (2801 km)
- Parco della Grotta (2588 km)
- Capitello Sant'Antonio (2680 km)
- Amantea Vecchia (2361 km)
- Chiesa del Collegio (2488 km)
- Chiesetta San Giuseppe (2187 km)
- Chiesa Madra San Biagio (2675 km)
- Mercato (3117 km)
- Castello di Amantea (2341 km)
Aeropuertos
- Aeropuerto Internacional de Lamezia Terme (41 km)
Reseñas
100% Reseñas Comprobadas